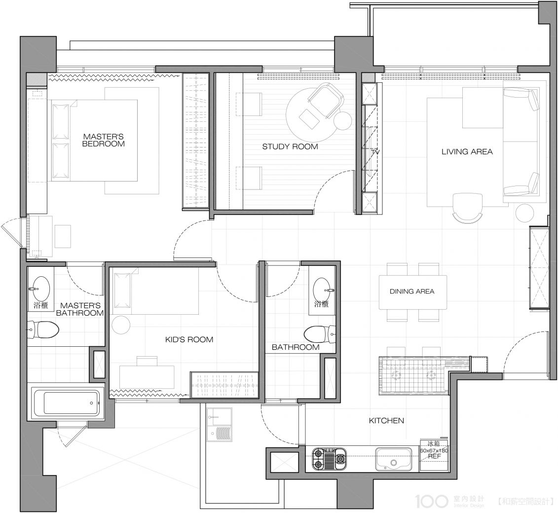
25坪平面图

准爸妈翻新年老屋 75 简约收纳宅 渝中林医师的家 重庆泰千装饰设计公司

海鲜小酒楼平面图 年海鲜小酒楼平面图资料下载 筑龙学社

延伸 灰 25坪幸福居家 錡羽創意空間設計 痞客邦

平现代北欧莫兰迪色系三室 衢州房产超市

日本千葉 26坪公寓 Courcasa 小院

台湾25坪小户型装修 看上去就像有一百平的空间 手机网易网
信息来源:坪山区城市更新和土地整备局 发布时间: 字体:大中小 打 印 网站纠错 分享到: 深圳市百佳利华投资有限公司申请办理佳华领悦广场(宗地号G113-8132)建设工程规划许可的变更。.

25坪平面图. - このピンは、ゆい 早川さんが見つけました。あなたも Pinterest で自分だけのピンを見つけて保存しましょう!. 一、站坪长度 .豆丁网 引用日期 图集. 一个长方形花坛1米,宽80米,画在比例尺是1:00的平面图上,面积是多少平方厘米 把一个半径为5米的圆形草坪,画在一张比例尺是1比0的平面图上,平面图上圆形坪面积是多少平方厘米.
来混的人 06:25:21. 818坪山未来最重要的一条路——坪盐通道 (15楼效果图)_京基·御景印象 - 家在深圳. 图纸简介: 100平方米别墅平面设计图纸 附件名:.zip 文件大小:K (升级VIP 如何赚取土木币).
竖向 图即为标高图, 2113 竖向图既不是立 面图 ,也不 5261 是剖面图,竖 4102 向设计是根 据原 始地形、地 貌将 平面方案控制 1653 在合理的高程点。. 农村二层四合院设计图,秒杀各种洋别墅 占地面积:2平方米 尺寸/户型可定制 主体造价:25万左右仅供参考 推荐级别:★★★★★ 图纸格式:a3纸质版+高清效果图 二层中式四合院别墅设计图,经典、漂亮(全套施工图) 占地面积:350平方米 尺寸/户型可定制. 深圳鸿荣源天俊公寓户型图_平面图_效果图—鸿荣源北站商业中心图片 来源: 鸿荣源天俊 咨询热线:400-151-77 扫描到手机,新闻随时看.
平面布置图 「专访」散发家的时髦品味! 台北一家四口的 25 坪亲子宅老屋改造 - 怀特室内设计 - DECOmyplace 装潢装修、室内设计、居家布置第一站. 深圳凤凰公馆,3月房价(参考均价:元/平方米),售楼电话(400-698-8066 转 ),位于坪山区坪山商圈,楼盘地址是碧沙北路. 道路工程识图与绘图 学习单元11 道路路线工程图 公路路线平面图 1 公路路线平面图 一、概述 二、公路路线平面图——地形部分 二、公路路线平面图——路线部分 三、公路路线平面图的绘制 2 二、公路路线平面图——地形部分 共17页第3 k4 k5 竹坪村 中华人民共和国 某某公路 山东省公路管理局 某某.
日本枯山水详解|附平面图 06:24. 2 施工现场平面布置 2.1 施工现场实际情况 施工现场实际情况 我公司多次踏勘现场,对本工程周边情况了解如下:(附施工现场现 状图) 2.1.1 东侧为晋陵中路,规划轨道交通 1 号线在建; 2.1.2 南侧为一期在建工地; 2.1.3 西侧为惠国路和河道管涵,地下室边线距离围墙约 40m,现有河道 (双桥浜)改道. 恒大城二期户型图、平面图_深圳坪山恒大城二期户型图平面图展示 来源: 恒大城二期 咨询热线:400-151-77 扫描到手机,新闻随时看.
联系地址:深圳市坪山区龙坪路6号(市规划和自然资源局坪山管理局) 邮政编码: 附件:1.豪方东园项目总平面图修改前 2.豪方东园项目总平面图修改后 深圳市规划和自然资源局坪山管理局 19年4月25日. (14/7/25 16:40:50) 坪山未来名副其实的东部华侨城后花园。. 车站为新建中间站,位于招远市北朱家村东侧,北临招辛快速路,东侧距离荣乌高速公路约 2km,距离招远市约 15km。 车站站中心里程为改 DK110+100,站坪坡度为 0‰。站房位于线路右侧,为线平式。.
易图诚泰 发布时间: 年03月25日来源:龙岗区城市更新和土地整备局 深圳市创城房地产开发有限公司来文申请办理丁山河畔花园项目(宗地G-2365)变更《建设工程规划许可证》。. 上行方向为大季家站,站间距 25.100km;下行方向为芝罘站,站间距左线 14.078km,右线 13.171km。 本站规模为 2 台 4 线(含 2 条正线),到发线有效长度为 650m,两端各设 1 组单渡线,设基本站台和侧式站台各 1 座,站台尺寸均为 450×8×1.25m。 福山南站平面布置图. 半山七里坪位于中国·洪雅,总规划面积12平方公里,预计总1亿元,是四川省首批著名的省级旅游度假区。 自 08年开发以来,七里坪已累计投入超过40亿元,已建成面积约3.5平方公里。 温泉度假酒店、半山康养小镇、溪谷栈道、 森林养生禅道、易筋经生命养生馆、汽车自驾营地、公主王子和熊猫.

70 Best 平面配置圖images

70 Best 平面配置圖images

格局上 搭配開放式格局與環繞動線 讓23 4 坪也能坐擁實用3 房2 廳 After 平面圖提供 L Atelier Fantasia 繽紛設計 Floor Plans How To Plan

25坪混搭風2房老屋翻新裝修效果圖 25坪打造異國情懷的日光宅 100室內設計

小户型装修效果图 现代25坪怀旧公寓设计 给予住宅温度的是记忆装修实例 模型云室内设计资讯

30 年中古長型屋大變身 台北 坪木質溫馨光感公寓 設計王designwant

室內設計入門及圖檔分享 住宅室內設計案例平面圖分享 溫哥華17 5坪

45度角空间分隔 这个25坪的房子空间利用率增加30
台北老屋改造 25 坪小清新日光宅 室内设计师平台 室内设计论坛 扮家家室内设计网

台北25 坪设计师的北欧风四口之家 免费下载家具图片 家具图片网 佳图网

從破解平面圖掌握格局規劃 別怕你的裝修夢想裝不進小空間 小坪數格局破解100

25坪静谧空间 不一样的感觉 知乎
曼哈顿练习曲 台北25 坪美式公寓演绎都会生活 室内设计师平台 室内设计论坛 扮家家室内设计网

平面圖 Genovia京成立石skygarden

70 Best 平面配置圖images

娱乐空间装修 室内方案图 室内施工图 室内方案文本下载 筑龙室内设计论坛

平面圖 Genovia王子神谷skygarden

專訪 將時間軸轉化為住所竹北25 坪混搭風單身宅 創境室內設計 Decomyplace 裝潢裝修 室內設計 居家佈置第一站

老屋翻新實例 25坪公寓變身清新又溫馨的木質居所 Homify Homify

墨瑪設計 室內設計作品 二十 25 坪兩房兩廳兩衛公寓 設計作品 租屋討論區 591房屋交易網討論區

好室佳 室內設計作品 三十五 25坪 3房2廳住宅設計案 設計作品 租屋討論區 591房屋交易網討論區

幸福空間 專欄 8款狹長格局設計 陰暗窄宅也能變身日光好宅

Idid點一點室內設計 18坪看起來有25坪的小空間放大術3招秒懂
全能改造王長型屋篇 築建大成設計工作室 隨意窩xuite日誌

好室佳 室內設計作品 五十四 25坪3房2衞 設計作品 租屋討論區 591房屋交易網討論區

小宅分區收納法 16坪也能勝25坪 一流人 遠見雜誌

中古屋改造也能這麼美 走甜美浪漫路線的25 坪美式風樓中樓 好宅設計 信義居家

Cad室内家具平面图 第1页 一起扣扣网

25坪現代風3房新成屋裝修案例圖 台中w宅 奧立佛x 竺居聯合設計 100室內設計
.jpg)
Gochoice購車趣

台北25 坪用家具营造北欧风的设计师工作室 免费下载家具图片 家具图片网 佳图网

25坪混搭風3房新成屋裝修案例圖 形寓 璞沃空間 100室內設計

好室佳 室內設計作品 六十四 25坪 3房2廳2衛新大樓 設計作品 租屋討論區 591房屋交易網討論區

從破解平面圖掌握格局規劃 別怕你的裝修夢想裝不進小空間 小坪數格局破解100

6 大不實用格局規劃設計平面圖前先想清楚 Decomyplace 裝潢裝修 室內設計 居家佈置第一站
蓝色大海的空间 现代风亲子公寓 室内设计师平台 室内设计论坛 扮家家室内设计网

平面圖可以告訴你的事 平面圖案例破解第九集柱位對不起來怪怪的 來源 Decomyplace

好室佳 室內設計作品 七十五 25坪 3房1廳夾層設計案 設計作品 租屋討論區 591房屋交易網討論區

姊弟當鄰居一樣的15坪不一樣的享樂空間

重庆保利爱尚里怎么样重庆保利爱尚里价格

台北 改造25坪狹長屋 Courcasa 小院

時尚 舒適夢想居 設計個案 100室內設計

專訪 暖木調收納宅 一家四口的25 坪溫馨北歐風 三商美福x 桃園楊小姐 Decomyplace 裝潢裝修 室內設計 居家佈置第一站

70 Best 平面配置圖images

這是25 坪還是50 坪 開闊格局打造寬敞感休閒居家 設計家searchome

實例 看4張建商預售屋平面圖 破解坪 小三房 根本很難住的真相 奶爸學經濟 房地產 商周財富網

22坪小宅超完美坪效發揮3房空間沒壓力 好宅設計 信義居家

Idid點一點室內設計 自地自建透天厝一家四口放假不想出門

这不是工厂 日本25 坪小夫妻铁皮屋住宅 唯淘网

都市里的轻薄生活 板桥25 坪水泥粉光慵懒宅 也爱家
满溢温暖日系宅 25坪简约木质亲子公寓 江橙空间设计 室内设计师平台 室内设计论坛 扮家家室内设计网

我的25坪溫馨小宅 精緻氛圍一點不輸別墅豪宅 混搭風 小坪數 裝修攻略 裝潢攻略 設計文章 新家案例 100室內設計

好室佳 室內設計作品 七十八 30坪 4房2廳2衛設計案 裝潢交流 租屋討論區 591房屋交易網討論區

室內設計入門及圖檔分享 住宅室內設計案例平面圖分享 溫哥華24 5坪

这三套小户型的乡村房屋设计效果及平面图纸 很赞 别墅工场

好室佳 室內設計作品 五十四 25坪3房2衞 設計作品 租屋討論區 591房屋交易網討論區

附平面圖 為何建商說的地坪與我算的差距如此大 Mobile01
專業空間丈量 Posts Facebook
简约中的美好温度 25 坪多层次舒适宅 室内设计师平台 室内设计论坛 扮家家室内设计网

Cad榻榻米衣柜平面图 第1页 一起扣扣网

智慧明日宅鴻築mm21 樂屋網

心得 淺談格局平面圖 青埔xx花園 Mo Ptt 鄉公所

最简单的宾馆平面图 第1页 一起扣扣网

东京25 坪清新风格公寓 免费下载家具图片 家具图片网 佳图网
台北25 坪工业风猫咪宅 室内设计师平台 室内设计论坛 扮家家室内设计网

破萬點閱率人氣精選 看起來不只25坪的極品小豪宅 好宅設計 信義居家

裝潢設計 繽紛率性跳色宅 台北30 坪單身女子公寓

平面圖 Genovia田端 Green Veil

台北25 坪美式乡村风公寓

4 大重點改造錯誤裝潢25坪新婚宅典雅變身 設計家searchome

日本千葉 26坪公寓 Courcasa 小院

平面圖規劃 25坪 Yahoo奇摩拍賣

台北25坪简约木质亲子公寓 满溢温暖日系宅 每日头条

平面圖規劃 25坪 Yahoo奇摩拍賣
小家庭首推 簡約幹練的純色系四方天地 Yahoo奇摩房地產

實例 看4張建商預售屋平面圖 破解坪 小三房 根本很難住的真相 奶爸學經濟 房地產 商周財富網

樂宅設計 新店合環御寶 60坪現代風毛胚屋新屋設計新店系統家具 樂宅設計 系統家具 痞客邦

25坪客變精算王 設計師創造坪效大利多 室內設計 室內裝潢網站平台 魔術空間設計

Loft小公寓难得一见的少女心 有这样的房子还怕找不到对象 快资讯

平面圖規劃 25坪 Yahoo奇摩拍賣

晉鴻室內設計 現代風 十三 25坪舊屋翻新 設計作品 租屋討論區 591房屋交易網討論區

從破解平面圖掌握格局規劃 別怕你的裝修夢想裝不進小空間 小坪數格局破解100

現代風專訪 50 坪溫馨四口宅以系統傢俱創造現代摩登家居 Order歐德傢俱集團

Idid點一點室內設計 25坪機能加倍不是夢 刷新小坪數新視野

25坪工業風2房中古屋裝修效果圖 以家為概念的新創辦公室 100室內設計

教你破解設計師的 平面圖 打造屬於自己的小坪數大格局 漂亮

新竹35 坪北歐木質現代親子宅 Decomyplace 裝潢裝修 室內設計 居家佈置第一站

好室佳 室內設計作品 七十八 30坪 4房2廳2衛設計案 裝潢交流 租屋討論區 591房屋交易網討論區

70 Best 平面配置圖images

70 现代工业风 灰白空间 原木点缀 装出年轻心情

漫画里走出来的小屋就要这样装

高雄25 坪简约开放式公寓 免费下载家具图片 家具图片网 佳图网

Q Tbn 3aand9gcrxr7hne5jazn1tdmhzl X99ysvl3ltlvg Usqp Cau

實例 看4張建商預售屋平面圖 破解坪 小三房 根本很難住的真相 奶爸學經濟 房地產 商周財富網